Apartamento de 2 dormitorios en edificio Parque Pinares

Apartamento » Maldonado » Las delicias

Alquiler » Consultar precio
ALQUILADO
55 m2
4 Ambientes
2 Dormitorios
1 Baños
1 Garage
#596

Detalles

Apartamento ubicado a pasos de playa mansa, con excelente calidad de construcción y diseño.

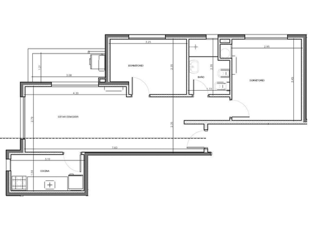
La unidad cuenta con un luminoso estar comedor con salida directa al balcón, cocina definida con mesada de granito, 2 dormitorios con cortinas de enrollar y un baño completo.

Le corresponde el uso exclusivo de una cochera y los gastos comunes están incluidos en el precio.

Además consta de portero eléctrico, termotanque instalado de cortesía y previsiones para la instalación de equipos de aire acondicionado y lavarropas.

Características

Aberturas de aluminio
Ascensor
Balcón
Baño completo
Cochera
Cocina
Cortinas de enrollar
Estar
Gastos comunes incluidos
Mesadas de granito
Portero eléctrico
Previsión para A/A
Previsión para lavarropas
Revestimientos de porcelanatos

Planos

Planos

Imagen 1 de la galería

Ubicación

Nova Hamburgo 9, 20000 Maldonado, Departamento de Maldonado, Uruguay

Contacto