Casa de 2 dormitorios en Colinas de Maldonado

Casa » Maldonado » Colinas de Maldonado

Venta » Consultar precio
58 m2
3 Ambientes
2 Dormitorios
1 Baños
1 Garage
#862

Detalles

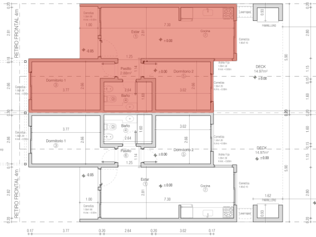
Unidad de propiedad horizontal con  58 metros cuadrados edificados desarrollados en 150 metros cuadrados de terreno, ubicado a minutos del centro de Maldonado.

La casa cuenta con estar comedor con kitchenette, 2 dormitorios y un baño completo.

Además consta de jardín, parrillero y cochera de uso exclusivo.

Planos

Plano

Imagen 1 de la galería

Ubicación

Isidore Ducasse 3304, 20000 Maldonado, Departamento de Maldonado, Uruguay

Contacto