Edificio Parque Pinares

Apartamento » Maldonado » Las delicias

Alquiler » Consultar precio
100% ALQUILADO
40 m2
#405

Detalles

Imperdibles apartamentos a estrenar ubicados a pasos de playa mansa, con excelente calidad de construcción y diseño.

En el edificio hay unidades de 1 y 2 dormitorios que cuentan con disfrutables balcones con vista al mar, con cocheras de uso exclusivo y gastos comunes incluidos.

Además todas constan de portero eléctrico, aberturas de alumino con cortinas de enrollar y previsiones para la instalación de equipos de aire acondicionado y lavarropas.

Características

Aberturas de aluminio
Ascensor
Balcón
Baño completo
Cochera
Cocina
Cortinas de enrollar
Estar
Gastos comunes incluidos
Mesadas de granito
Portero eléctrico
Previsión para A/A
Previsión para lavarropas
Revestimientos de porcelanatos

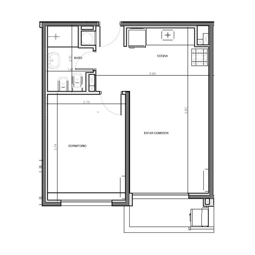
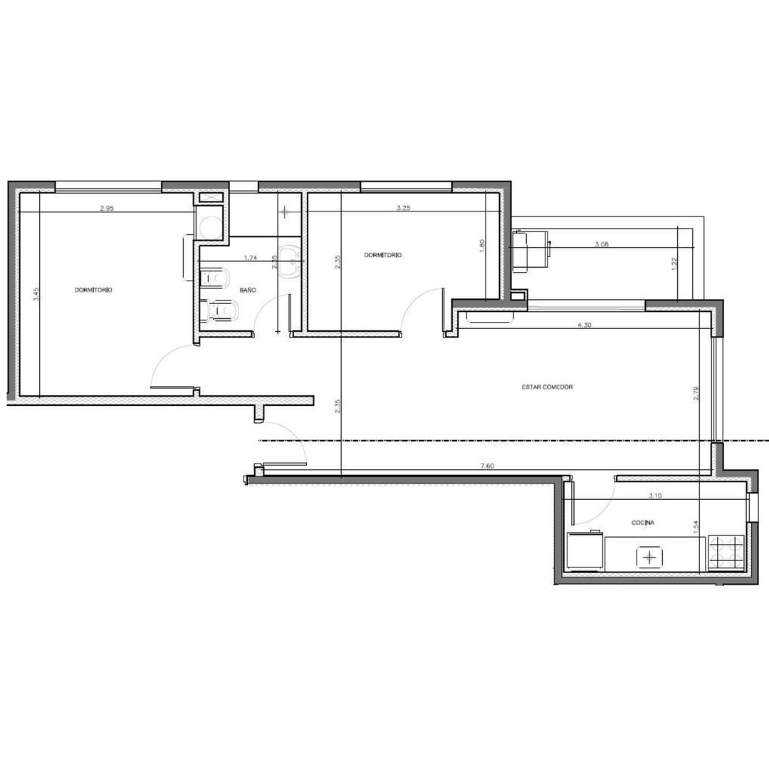
Planos

Tipología 1

Imagen 1 de la galería

Tipología 2

Imagen 2 de la galería

Tipología 5

Imagen 3 de la galería

Tipología 6

Imagen 4 de la galería

Tipología 7

Imagen 5 de la galería

Tipología 8

Imagen 6 de la galería

Planta general

Imagen 7 de la galería

Ubicación

Avenida España & Novo Hamburgo, Maldonado Departamento de Maldonado, Uruguay

Contacto