Pinares Housing

Casa » Maldonado » Jardines de Pinares

Venta · Consultar precio
96 m2
3 Ambientes
2 Dormitorios
2 Baños
1 Garage
#847

Detalles

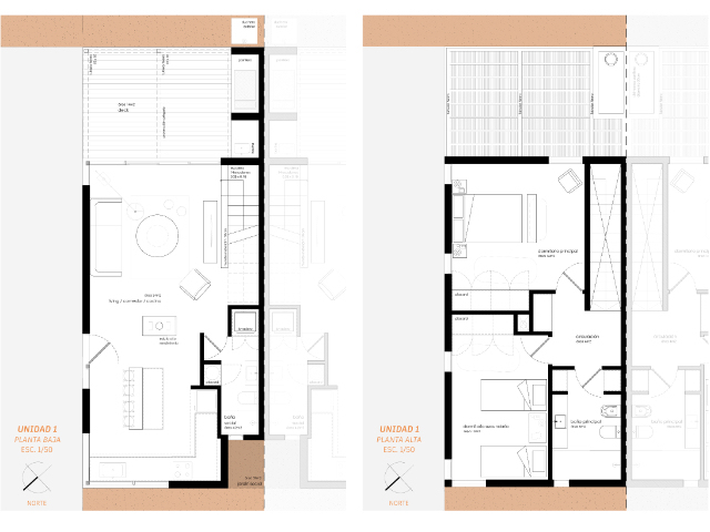
 El proyecto se implanta sobre terrenos de 600 metros cuadrados y consta de viviendas de 96m2 construidos, distribuidos en dos niveles.

En planta baja encontramos un espacioso ambiente de concepto abierto, integrando living, cocina y comedor más toilette con ducha y lavadero. Hacia el fondo se extiende un deck con parillero y pérgola.

En planta alta se desarrollan dos cómodos dormitorios con placares y un amplio baño completo.

Con un diseño de líneas simples y modernas, el aluminio negro y la madera, cerramientos con DVH, estufa de alto rendimiento y la comodidad de sus ambientes entre otros detalles, Pinares Housing busca el equilibrio entre la estética, la funcionalidad y el confort.

Características

Aberturas de aluminio
Acceso directo desde la calle
Baño completo
Baño social
Cochera
Cocina
DVH
Estar
Jardín
Placares
Previsión para A/A
Previsión para lavarropas
Revestimientos de porcelanatos

Planos

Plano

Imagen 1 de la galería

Plano

Imagen 2 de la galería

Plano

Imagen 3 de la galería

Plano

Imagen 4 de la galería

Render

Imagen 5 de la galería

Render

Imagen 6 de la galería

Ubicación

Fraccionamiento Jardines de Pinares, Maldonado Departamento de Maldonado, Uruguay

Contacto