Apartamento de un dormitorio en edificio More Atlántico

Apartamento » Maldonado » Jaurena

Alquiler » Consultar precio
ALQUILADO
50 m2
2 Ambientes
1 Dormitorios
1 Baños
#706

Detalles

El edificio MORE ATLÁNTICO se desarrolla en planta baja con Lobby de acceso de doble altura, 18 niveles de apartamentos, estacionamientos y servicios de apoyo en subsuelos.

El primer nivel de apartamentos corresponde al piso 6 ya que el Shopping se desarrolla en los niveles inferiores, funcionando de forma totalmente independiente.

El nivel 4 está destinado a amenities que incluyen:

  • Dos Salones Barbacoa integrables, equipados con parrilleros y cocina gourmet.
  • Barbacoas pergoladas.
  • Amplia terraza equipada con livings exteriores.
  • Pet Garden.
  • Playground.
  •  Kids Area equipado con material lúdico.
  • Piscina climatizada interior y exterior, ambas con sector definido para niños, orientadas al noroeste.
  • Solárium equipado con reposeras, camastros y sombrillas.
  • • Sala de Masajes.
  • A Sauna húmedo.
  • Gimnasio con equipamiento de fitness de última generación y espacio polivalente para deportes relax.
  • Deck de meditación.
  • Servicios higiénicos con accesibilidad universal.
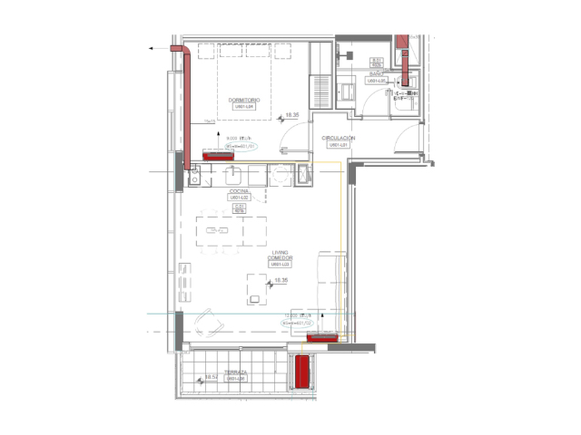
El apartamento consta de estar comedor con kitchenette, balcón con hermosas vistas, un dormitorio con placares y un baño completo.

La unidad cuenta con anafe, horno, campana de extracción de aire y 2 equipos de aire acondicionado.

Planos

Plano

Imagen 1 de la galería

Ubicación

Av. Franklin Delano Roosevelt 12, 20000 Punta del Este, Departamento de Maldonado, Uruguay

Contacto